top of page
VIEW
“...If a building has stopped to fulfil its functions in terms of sheltering human activities, does it still have value?”
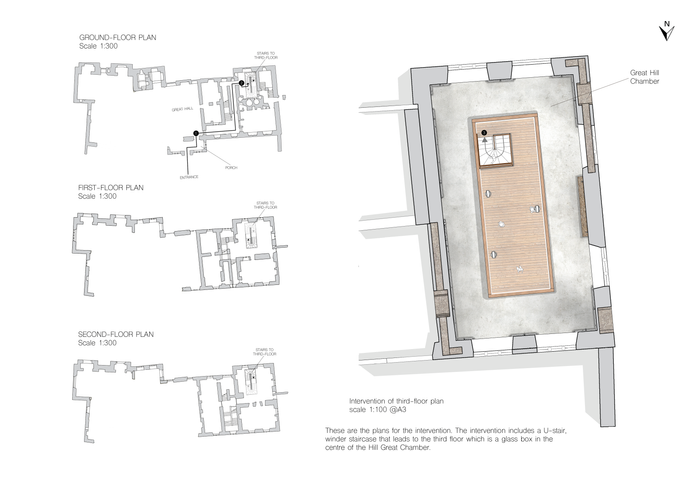
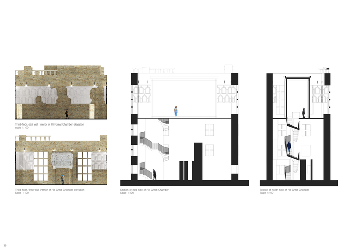
In this project, I was proposed to explore and investigate one of the most innovative houses of the Tudor period, Hardwick Old Hall. I had to analyse the relationships between the ruins of the standing building and its surroundings.
I needed to develop an understanding of contemporary culture and the conservation of ruins. Working with a building that had lost its natural defences such as roof, windows, plaster, etc, I had to design an intervention which examines architectural elements of Hardwick so that visitors can observe the intricate stonework contained at Old Hall.


bottom of page
_edited.png)













